Marine air compressor shipped to Mexico by HI-SEA
HI-SEA MARINE successfully delivered 1 Sets of marine air compressor to Mexico. A marine air compressor is a specialized compressor designed to withstand the harsh, corrosive marine environment while providing reliable compressed air for various critical applications onboard vessels, such as main engines, pneumatic tools, cleaning systems, and cabin inflation. The cooling method of are air cooling and water cooling. In general, the marine air compressor is powered by the electric motor, while the emergency air compressor is powered by the diesel engine.
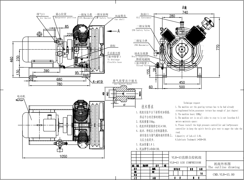
The main parameters are as follows:
u Model: VLH-43, V-type, two-stage compression, direct coupling driving
u Displacement capacity: 26m³/h
u Rated Pressure: 3.0 MPa
u Cooling method: Air cooled
u Speed: 1000r/min
u Motor power: 7.5kw
u Voltage & Ferequency: 380V /50Hz/3P
u Protection class: IP44
u Insulate class: F
u Lubricating Method: Splash Lubricate
u With CCS certificate
u Automatic control function: Start automatically (2.0MPa Regulation),stop automatically (3.0MPa). Unload automatically, Motor overload alarm.
u Configuration: air compressor, electric motor, pressure controller, electric control box, Unload electromagnetic valve, etc..
The drawing is as follows:
VLH Series air compressors are high-speed, high-efficiency compressors primarily used for:
l Emergency air supply replenishment on large vessels,
l Main engine starting on small and medium-sized vessels,
l Diesel engine starting,
l And as an air source for construction, petrochemical, and other industrial applications, as well as for pressure testing.
This compressor series features:
l A simple structure,
l Sleek appearance,
l Light weight,
l Compact size,
l Low fuel consumption.
l Notably, it offers:
l Extended valve life,
l Excellent cooling performance,
l Low noise levels.
l The design incorporates durability under specific environmental conditions.
Before start production, HI-SEA MARINE sent the drawings to clients for confirmation. After finished the Marine Air Compressor, the quality department and technical department carried out all kind of tests. After that the CCS surveyor also carried out all tests. All the test of the air compressor meet the expected design standards and the rules of CCS.
As a professional supplier of marine equipment and dredger components, HI-SEA MARINE have 15 years of experience. All of our work meets ISO 9001:2015, and excellent service and excellent quality have been recognized by many clients.
Tel:+86-23-67956606
Email:
